San Francisco (旧金山) 的柏文公寓 3 卧室 1 浴室的房产出售

1546 Dolores Street, San Franc, San Francisco (旧金山) - 加利福尼亚 94110 (美国)

139万美元


学校评分
-
租金回报
-
房价增值
-
打印

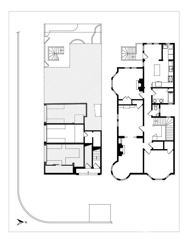
这座建于约1900年的顶层爱德华时代公寓,俯瞰着位于诺伊谷的美丽景观Dolores街大道,那里点缀着棕榈树,即使它们不是本地人,你也能原谅它们。这座建于约1900年的顶层爱德华时代公寓,展现了让旧金山经典公寓闻名遐迩的规模与工艺。 这套近1500平方英尺的三居室一卫全层公寓,充满了古典爱德华时代的细节,包括:高拱形天花板、护墙板、时代线脚、双悬窗、推门、风格独特的双人客厅以及朝向阳光的内厅厨房。 现代更新被深思熟虑地融入其中,同时不抹去特色:橡木硬木地板;翻新的堂食厨房;内置家庭办公室;配备全尺寸洗衣机和烘干机的单元内洗衣房;还有两个装饰性的爱德华时代壁炉,营造出那种独特的旧金山氛围。 罕见的额外设施是:一间带有储藏空间的私人产权单车独立车库。该住宅位于诺伊谷,步行评分为97,距离社区热门住宅仅数分钟车程,且地理位置优越,方便通过MUNI或快速通勤南湾。 请务必查看“虚拟媒体”栏目下的视频。


  • 价格: 139万美元
  • 类型: 柏文公寓
  • 卧室: 3
  • 浴室: 1
都会区信息

都会区信息

旧金山湾区(“湾区”)是加州很受欢迎的地区,主要城市包括旧金山、圣何塞、奥克兰以及一些较小的城市和郊区,人口约715万。湾区的财富500强企业数量在全美位居第二,并且以美丽的自然风光、自由政治、创业以及多元化而闻名。湾区尤以高科技而著名,硅谷(距离旧金山市区约1小时车程)是世界著名的科技创业之地。旧金山湾区的大学生人口密度在加州是第二高,家庭平均年收入也超过加州平均水平。湾区是美国最富裕的地区之一,主要由于圣何塞、旧金山和奥克兰的强大经济实力。普莱森顿的家庭平均年收入居全美第二,仅次于康乃迪克州的新迦南。然而,湾区的可支配收入与美国其他地区相比并没有相差很大,主要因为其较高的生活成本抵消了高收入。湾区有许多大学和学校,最著名的有加州大学伯克利分校、加州大学旧金山分校和斯坦福大学。

气候:气候宜人、冬暖夏凉、阳光灿烂,昼夜温差较大。

所有信息来源可靠,但不排除存在错误、遗漏、价格变化、提前售出或未作通知而取消的情况。对任何描述的精确性不负有责任。所有测量值及建筑面积均为近似值,客户应确认所有信息。客户应就所有交易费用(包括税款)咨询相关顾问。学校评分为最邻近该房产的几个学校的平均评分。租金回报为预估年度毛租金收入除以该房产当前销售价格的百分比。房产增值为该地区房产过去五年的售价增长百分比。 重要提示:过去的数据不保证未来收益。房产投资具有风险,投资者应当有能力承受损失。

东西方置业顾问积极支持平等住房机会。

代理方

EWPA


掮客: Corcoran Icon Properties

* * *
*
* *

提交并同意东西方置业咨询有限公司的服务条款及隐私政

媒体采访

Forbes
Bloomberg
South China Morning Post
CNBC
iMoney
Shanghai Times
Squarefoot
Shanghai Office
Capital Weekly
The New York Times
TheStreet.com
Financial Times