Cortlandt Manor (纽约) 的独立屋 3 卧室 3 浴室的房产出售

4 Goldman Court, Cortlandt Manor (纽约) - 纽约 10567 (美国)

120万美元


学校评分
-
租金回报
-
房价增值
5年: 123%
打印

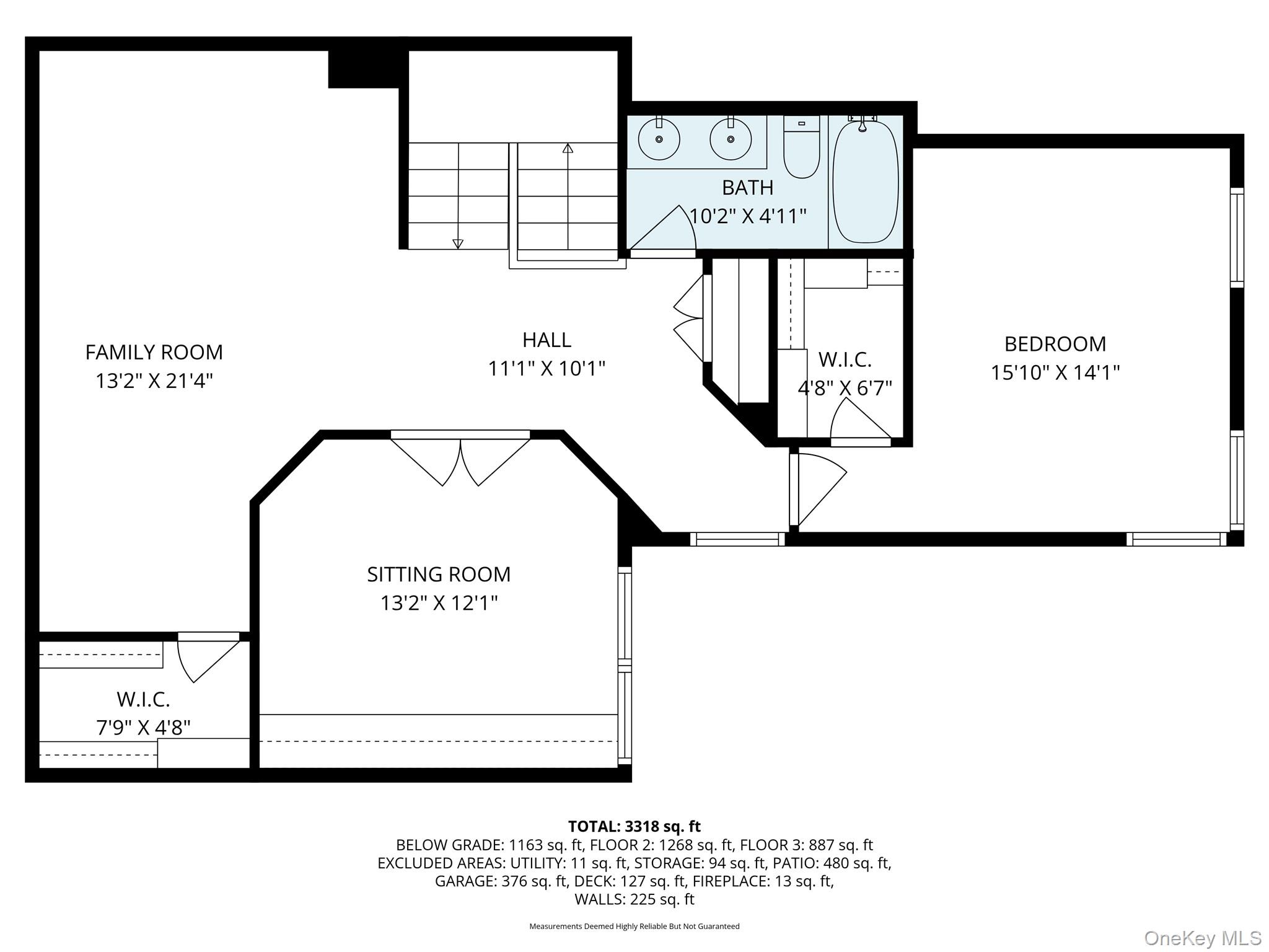
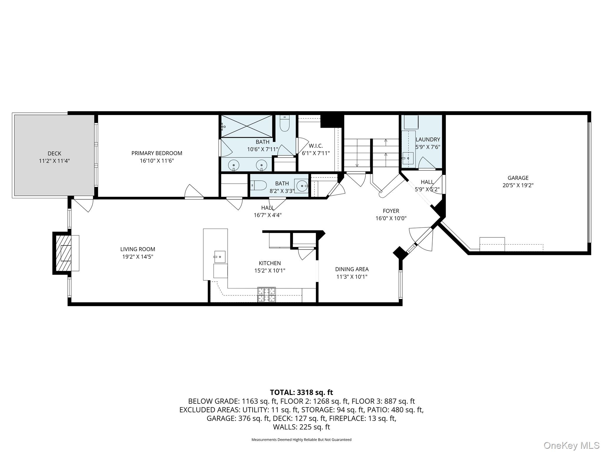
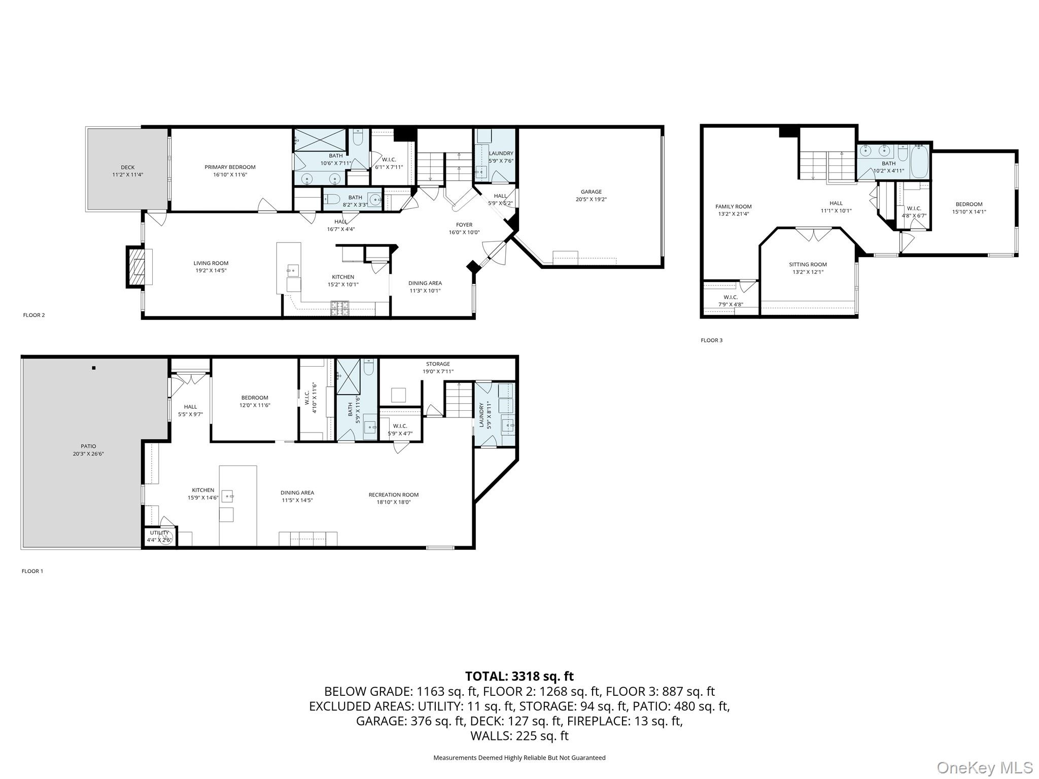
当你来到瓦莱里亚时,脑海中浮现的就是优雅与奢华!这个历史悠久的社区是韦斯特切斯特最鲜为人知的秘密之一。一座马车式住宅坐落在698英亩的保护土地上。场内设施包括带游泳池、健身中心、网球/匹克球场、风景优美的步道和43英亩的湖泊,使这里成为奢华的度假胜地!!进入4 Goldman Court,迎接您的是宽敞的入口大厅和餐厅,餐厅与厨师厨房无缝衔接,配备不锈钢电器和优雅的花岗岩台面,配有落地橱柜。拱形客厅配有美丽的燃气壁炉,营造出开阔且宜人的氛围,非常适合生活和社交互动。便利的主层主卧套间、半卫浴和洗衣房组成了一楼。上层有卧室、宽敞的办公室(内置华丽的)、全套浴室和宽敞的书房,带拱形天花板和天窗!!装修好的地下室就像一个独立的公寓,非常适合多代同堂生活。配备卧室、全套浴室、厨房、第二洗衣房和客厅,非常适合任何人。房屋的精心布局确保每一平方英尺都被高效利用,为放松和娱乐提供了充足的空间。4 Goldman Court不仅仅是一个家,更是体现奢华生活原则的避风港。凭借宽敞的布局、令人惊叹的设施和宁静的环境,这座马车房在西切斯特最隐秘的秘密之一中,提供了无与伦比的生活方式。无论你是在寻找奢华的度假胜地,还是寻找一个可以休息的地方,4 Goldman Court 都承诺为您提供将优雅、舒适与社区氛围相结合的卓越生活体验。


  • 价格: 120万美元
  • 类型: 独立屋
  • 卧室: 3
  • 浴室: 3
都会区信息

都会区信息

纽约包括纽约市以及周边的郊区。纽约市是美国人口最多、人口密度最大的城市,2015年估计有855万人口。纽约市也是全球语言最多元化的城市,每天有800多种语言在纽约交流。纽约是联合国的所在地、国际外交中心,也是全球文化和金融中心。纽约的长岛聚集着众多高质量的学校,也是美国人口最多的岛屿,并且长岛人口占整个纽约的人口比重正在逐年上升。

气候:四季分明,夏季较凉爽,六月到九月的平均气温为21度左右,冬季寒冷,常见零度以下的低温

所有信息来源可靠,但不排除存在错误、遗漏、价格变化、提前售出或未作通知而取消的情况。对任何描述的精确性不负有责任。所有测量值及建筑面积均为近似值,客户应确认所有信息。客户应就所有交易费用(包括税款)咨询相关顾问。学校评分为最邻近该房产的几个学校的平均评分。租金回报为预估年度毛租金收入除以该房产当前销售价格的百分比。房产增值为该地区房产过去五年的售价增长百分比。 重要提示:过去的数据不保证未来收益。房产投资具有风险,投资者应当有能力承受损失。

东西方置业顾问积极支持平等住房机会。

代理方

EWPA


掮客: Coldwell Banker Realty

* * *
*
* *

提交并同意东西方置业咨询有限公司的服务条款及隐私政

媒体采访

Forbes
Bloomberg
South China Morning Post
CNBC
iMoney
Shanghai Times
Squarefoot
Shanghai Office
Capital Weekly
The New York Times
TheStreet.com
Financial Times